Amanda Perols & Linnéa Johansson
2025
Transformation and addition to an abandoned office building in Malmö. 
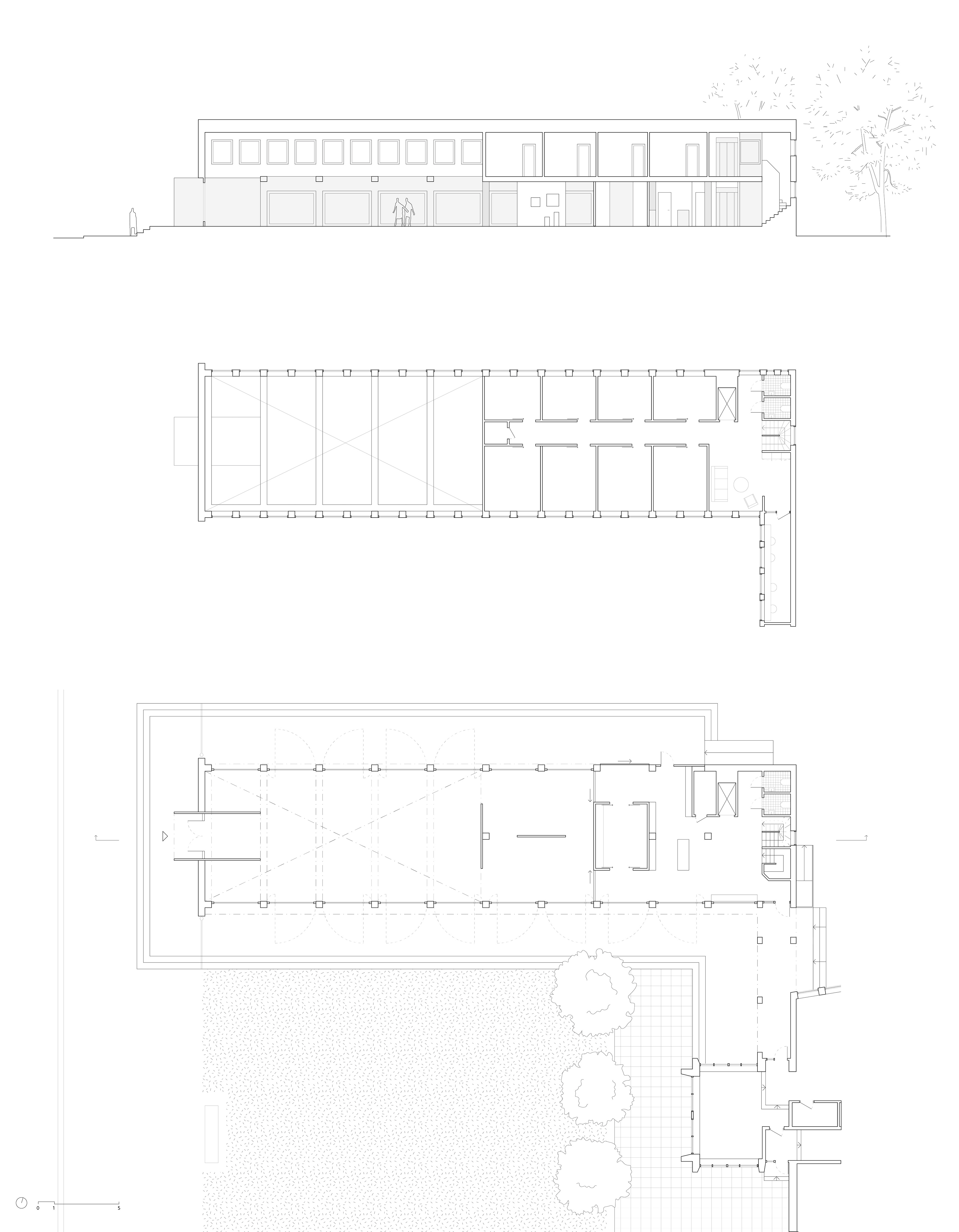
The project proposes a transformation of Bylgia, an abandoned office building in Malmö, with the aim of reconnecting it to the city and its surroundings. The focus is to create a more public part of the building and connecting it to new interventions in the surrounding landscape.
The annex is transformed into a gallery, with a new public entrance and the possibility to open up to the park. In addition the facade is upgraded with metal sheets and to lengthen Bylgia's characteristic window rows. 
A public roof with toilets, a bike repair station and seating is added outside of the annex. Along the quay, a new lower swimming dock is added, including saunas and a kioskThese additions activate the currently underused asphalt area by dividing it into zones for picking, walking, resting and leisure, while introducing new public functions. Together, they create a stronger spatial connection between Bylgia, its surroundings and the water.
The project is seen as a catalyst to what the area awaits. With new, largescale urban development to come the aim of the smaller additions is to try to initiate a start on a smaller scale and invite people to use the space today. By transforming a small part of Bylgia to a new public function it is easier integrated into the city's future development.  

You may also like